Consultation
In the early stages of our design process, we strive to understand your unique vision, needs, and aspirations for your space. We delve into conversations and consultations to extract your preferences, lifestyle, and tastes. This Discovery phase is more than just identifying what you want—it’s a deep exploration of how you want to feel in your new environment. This fuels the Conceptualization stage, where initial ideas begin to take shape, emerging as rough sketches, mood boards, and digital 3D visualizations.
Planning
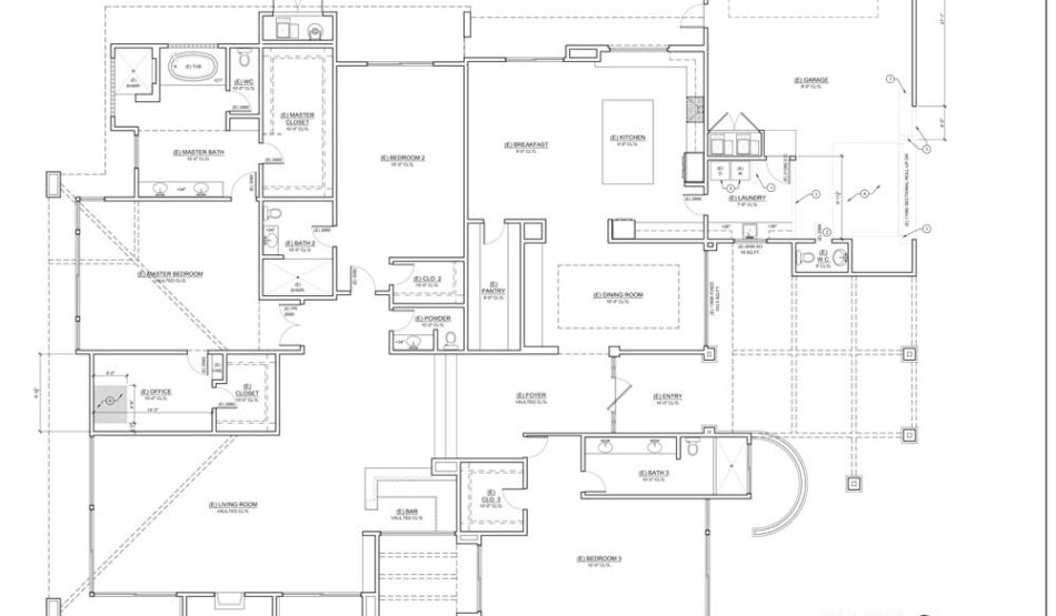
After establishing a robust concept, we enter the Design Development phase. This is where your vision begins to transform into a tangible, detailed plan. Our team crafts precise architectural drawings and outlines technical requirements, ensuring every design element is meticulously considered and planned for. It’s in this phase that the synergy of aesthetics and functionality is truly achieved, balancing beauty with practical considerations.
Management
Our commitment to precision and efficiency shines during the Construction Documentation stage. Detailed drawings, plans, and specifications are prepared, capturing every aspect of the design, from the broad strokes of spatial layout down to the intricate details of materials and finishes. These comprehensive documents guide the builders, ensuring your project is executed exactly as designed.
Finalization
This final stage breathes life into our meticulously designed and planned vision. The Construction phase sees our trusted team of builders and craftsmen translating the design into reality. Our dedicated project management ensures a seamless process, with a stringent focus on quality control, timeline adherence, and budget management. Our aim is to make the construction process a stress-free experience for you, and to deliver a final product that not only meets but exceeds your expectations.
